INICIO
RESIDENCIAL
COMERCIAL
MOBILIARIO
NOSOTROS
CONTACTO
INICIO
RESIDENCIAL
COMERCIAL
MOBILIARIO
NOSOTROS
CONTACTO
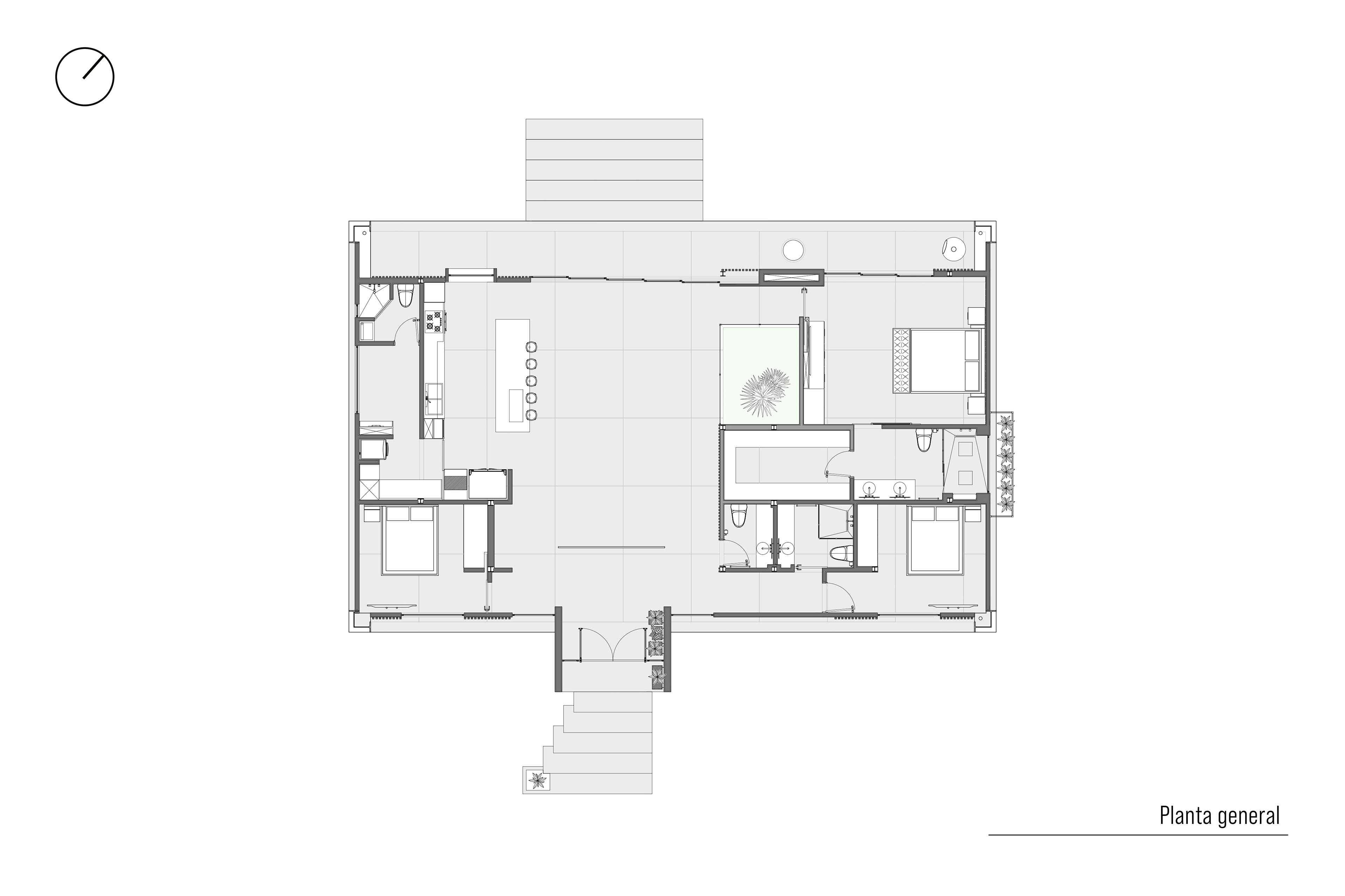
CASA INKAMBÚ
Diseño:
Fractal, Marcela Alzate, Mariana Sanchez
Carpintería:
ERA Diseño
Ventanería:
La Vidriera
Año:
2023
Ubicación:
Pereira
Fotografía:
Joan Muñoz
Proyectos Similares
AMBERES WAFFLERÍA
SILLÓN AURA
LA ESPERANZA
APARTAMENTO TERRA BELLA
CASA PRIMAVERA
ECOBOWLS
AMARILLO LIMÓN
OFICINAS AGRÍCOLA PACÍFICO SUR
APARTAMENTO TERRA BELLA II
CAFÉ BOSQUE DE PALMAS